Executions

Retrouvez ci dessous toutes les éxecutions Norba

Affichage de 1 à 70 sur 70 éxecution

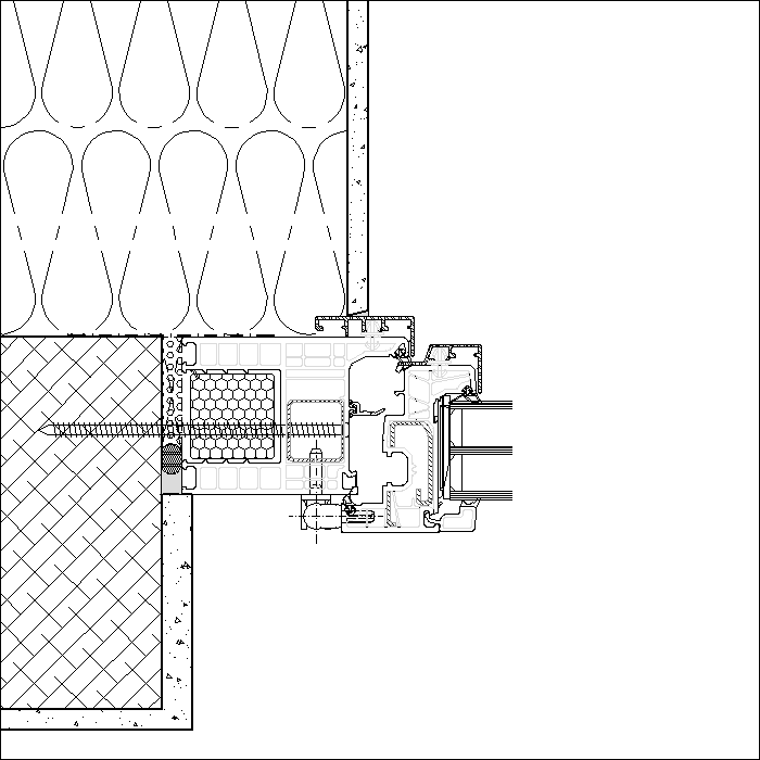
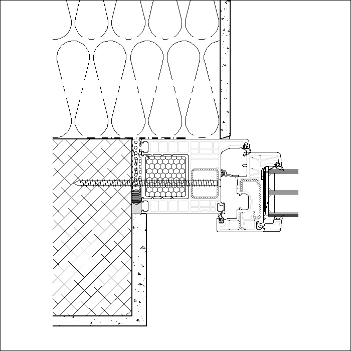
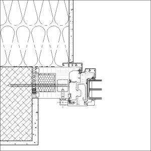
Porte d'entrée

Porte d'entrée PVC

Vues porte alignée extérieure, avec tablette béton

Plan pdf
Plan dwg

Porte d'entrée bois

Pose applique ou entre-murs
Panneau à recouvrement avec joint de recouvrement
Finition panneau lisse, 73 mm

Plan pdf


Fenêtre

Coulissant à levage PVC

Neuf

Matériau PVC : Porte-fenêtre coulissante à levage

Plan pdf
Plan dwg

Coulissant à levage PVC métal

Neuf

Porte-fenêtre coulissante à levage PVC métal

Plan pdf
Plan dwg

Coulissant à levage Bois HAS6000

Neuf

Matériau Bois : Porte-fenêtre coulissante à levage Norba

Plan pdf
Plan dwg

Fenêtre Bois Métal HAS3040

Rénovation

Matériau Bois Métal : Fenêtre, porte-fenêtre, vitrage fixe

Plan pdf
Plan dwg

Coulissant levage Bois Métal HAS7000

Neuf

Matériau Bois Métal : porte-fenêtre coulissante à levage Norba

Plan pdf
Plan dwg

Coulissant à translation PVC T81CH

Neuf

Matériau PVC : Porte-fenêtre coulissante à translation

Plan pdf
Plan dwg

Coulissant à translation PVC Métal TPA81CH

Neuf - capotage partiel

Porte-fenêtre coulissante à translation PVC métal Norba

Plan pdf
Plan dwg

Coulissant à translation Bois HAS1100

Neuf

Matériau Bois : Porte-fenêtre coulissante à translation Norba

Plan pdf
Plan dwg

Coulissant à translation Bois Métal HAS8010

Neuf

Matériau Bois Métal : Porte-fenêtre coulissante à translation Norba

Plan pdf
Plan dwg

Porte

Portes coulissantes manuelles EI30

Système 1 vantail / 2 vantaux une partie

Système télescopique à 1 vantail / 2 vantaux avec 2 ou 3 éléments

Vitrages dans panneaux

Exécutions vitrées Cristallo/Diamant Lux dans cloisons vitrées Cristallo/Diamant Lux

Portillons de secours avec ou sans fonction EN 179

Différentes possibilités en partie supérieur (p.ex. l'intégration du rail dans le plafond)




Portes coulissantes manuelles EI30

Système 1 vantail avec portillon de secours intégré

Vitrages dans panneaux

Différentes possibilités en partie supérieure comme, par exemple l'intégration du rail dans le plafond

 




Portes coulissantes manuelles EI30

Système 1 vantail avec portillon de secours




Portes coulissantes automatiques EI30

Système 1 vantail / 2 vantaux avec ou sans fonction Breakout (porte coulissante ET battante)

Vitrages dans panneaux

Exécutions vitrées Cristallo/Diamant Lux dans cloisons vitrées Cristallo/Diamant Lux

Portillons de secours avec ou sans fonction EN 179

Possibilités avec tous les fabricants de moteurs du marché




Portes Pliantes EI30

Système 1 vantail

Système 2 vantaux

Portillons de secours avec ou sans fonction EN179

 




Portes pivotante pliante EI30

Système 1 vantail

Système 2 vantaux

Portillons de secours avec ou sans fonction EN179




Vitrages fixes

Vitrage fixe homologué EI30

Avec montants-traverses / verres collés ou pas
Pose entre mur ou applique
Mise en œuvre en extérieur possible avec des vitrages isolants

Intégration de portes coulissantes ou pivotantes EI30




Vitrage fixe homologué EI60

Avec montants-traverses / verres collés ou pas
Pose entre mur ou applique
Mise en œuvre en extérieur possible avec des vitrages isolants

Intégration de portes coulissantes ou pivotantes EI30




Vitrage fixe homologué EI60

Verres collés ou pas EI30/EI60/EI90

Pose entre mur




Vitrage fixe homologué EI30/EI60/EI90

Verres collés ou pas EI30/EI60/EI90
Pose entre mur ou applique
Possibilité éventuelle de mise en œuvre de stores dans les verres




Vitrage fixe homologué EI60

Sans montant 
Pose entre mur
 




Armoire

Tablettes

Tablette intérieure bois

Sans retombée
Fixation sur la maçonnerie

Plan pdf